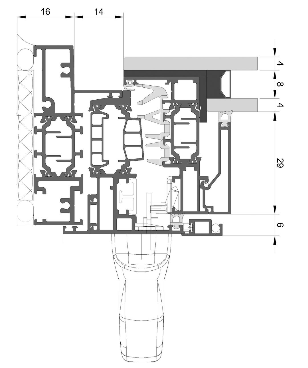
37 000 Window Wall Outswing Series
Window wall systems are commonly used in ribbon window configurations or punched openings. The framing system spans from slab-to-slab and can be installed from the building’s interior to improve logistics and reduce installation costs. Window wall systems can also employ floor slab edge covers that enable the system to mimic the look of a curtain wall system at a significantly reduced cost. Everest offers a complete suite of tools and engineering services to assist in proper system selection, specification, and installation of this system. The series presented in this page is outswing operated system.
Technical data
| Exterior visible width | 46 mm [1.8”] |
| Mullion Depth | 152 mm [6”] |
| Transom Depth | 152 [6”] |
| Glass Thickness | ≤50 mm [≤2”] |
| Mullion max inertia | jx=700 |
| Transom max inertia | jx=700 |
| Uf | 1.7 W/m2K [0.299 BTU/h ft2°F] |
Request product catalog
Interested in our products? You can send us a request about a specific product brochure and we will reach you as soon as possible!







